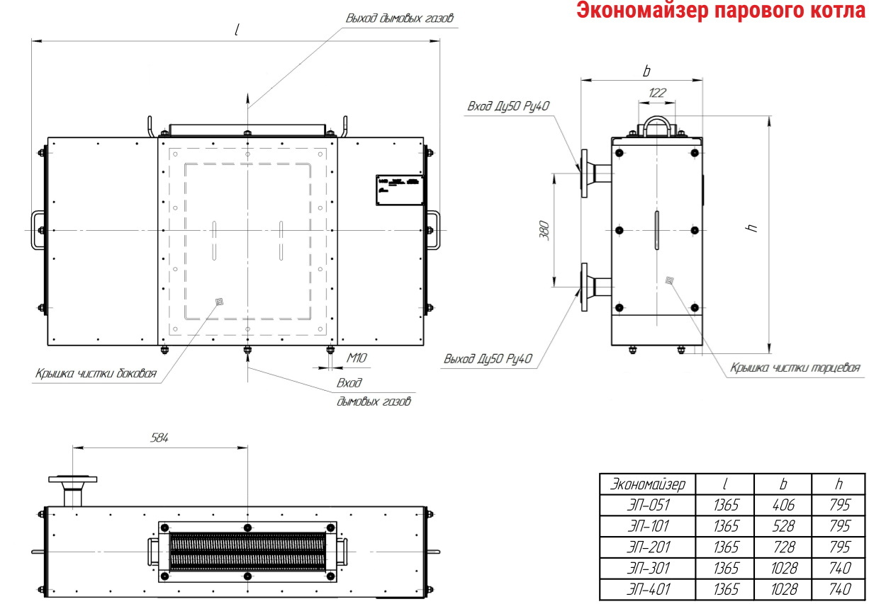
Экономайзер парового котла ЭП

Стальные оребренные отдельно стоящие экономайзеры применяются в качестве хвостовых поверхностей нагрева паровых котлов с рабочим давлением до 1,6 МПа (16 кгс/см2) и предназначены для нагревания питательной воды уходящими дымовыми газами.
Базовый комплект поставки: экономайзер, эксплуатационная документация.
Характеристики
Габаритный чертеж

Характеристики

Габаритный чертеж

Made on
Tilda