Водогрейный котел (твердотопливный) - 0,45T

Мощность: 0,45 МВт

Топливо: торфобрикет, дрова

Загрузка топлива: ручная

Температура воды
  • минимальная на входе — 70ºС
  • максимальная на выходе — 95/115ºС

Рабочее давление — 0,4/0,6 МПа

Отличительные преимущества:
  • высокая эксплуатационная готовность и надежность
  • быстрая окупаемость
  • быстрый монтаж и удобное обслуживание
  • оснащается системой контроля и управления (СКУ) и системой автоматизированного управления технологическими процессами (АСУ ТП) в режиме реального времени
  • гарантийное сервисное обслуживание
Технические характеристики КВ-0,12Т; КТВ-0,25Т; КВ-0,36Т; КВ-0,45Т
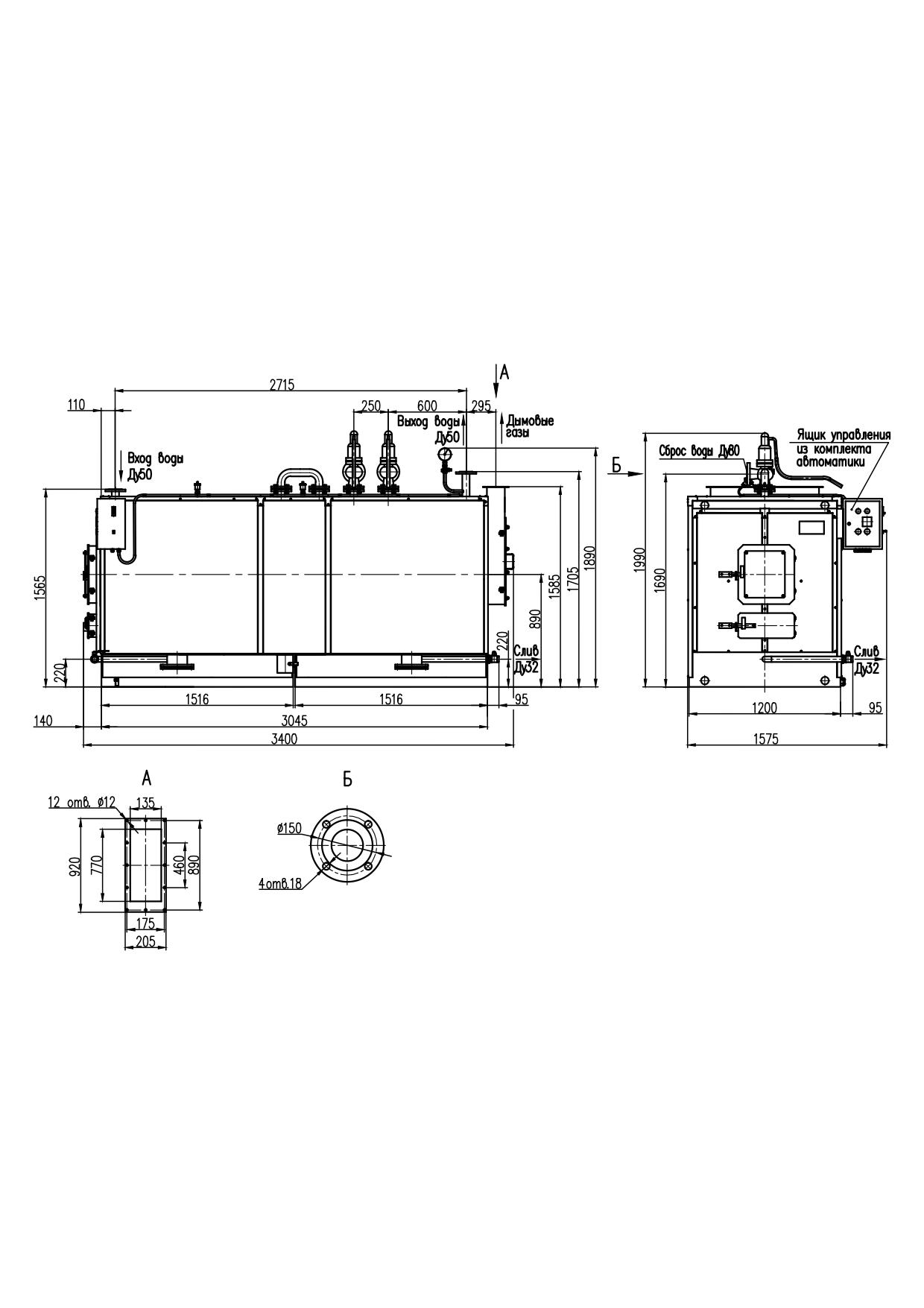
Габаритные и присоединительные размеры котла КВ-0,45Т

Технические характеристики КВ-0,12Т; КТВ-0,25Т; КВ-0,36Т; КВ-0,45Т

Габаритные и присоединительные размеры котла КВ-0,45Т



Made on
Tilda